Rustico in vendita

Savignano Sul Rubicone, Via Scodella
€ 270.000
Prezzo aggiornato
5 locali 5 locali
255 Mq 255 Mq
1 bagno 1 bagno

Rustico in vendita

Savignano Sul Rubicone, Via Scodella

Descrizione annuncio

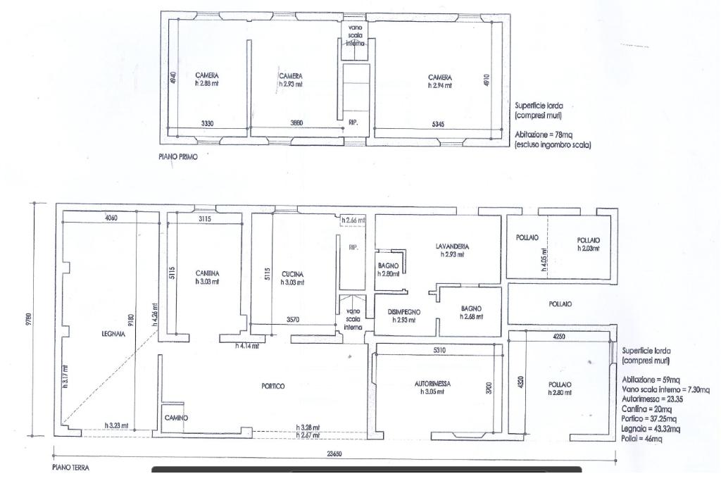
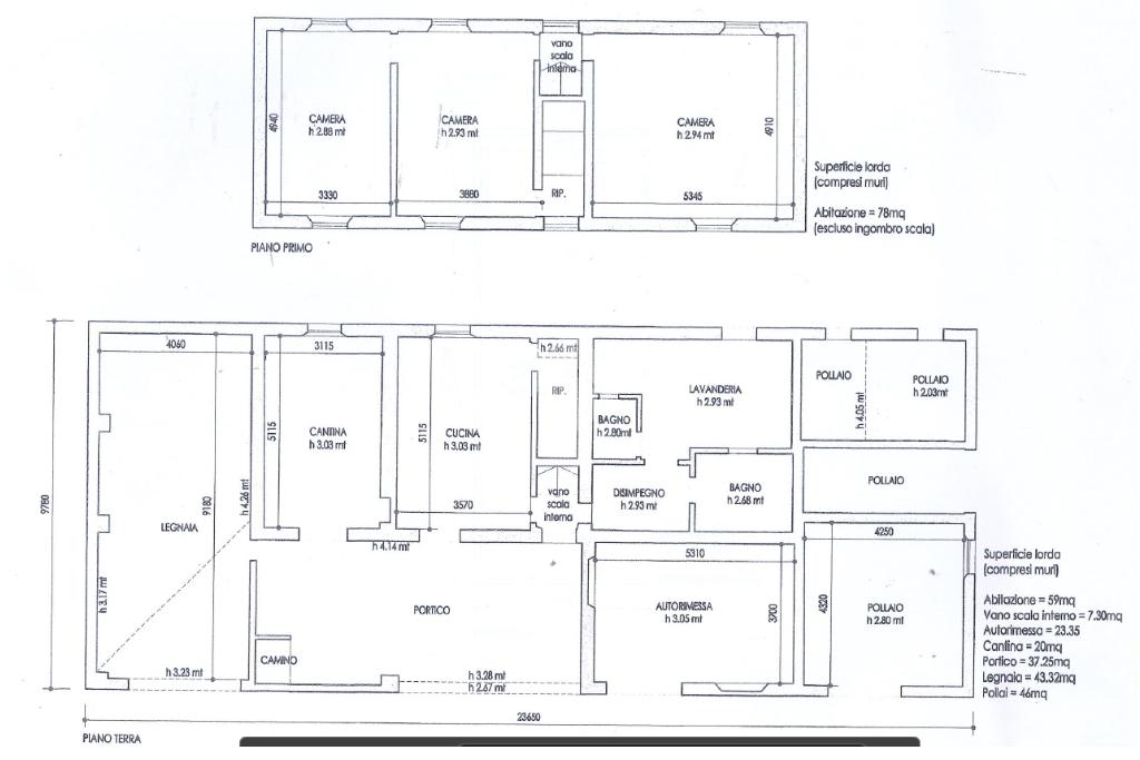
Savignano sul Rubicone: a pochi minuti dai principali servizi, in posizione pianeggiante ai piedi del Castello di Ribano, proponiamo casolare colonico romagnolo dei primi ’900 su lotto di oltre 1.500 mq, sviluppato su due livelli. Il contesto è residenziale e riservato, immerso nel verde ma non isolato. Completa la proprietà un deposito trasformabile in garage.

L'abitazione al piano terra ci accoglie tramite porticato con camino, in un ampia cucina con ripostiglio. Tramite disimpegno si raggiunge la camera da letto singola ed una lavanderia dedicata aggiunge comodità alla vita quotidiana. Inoltre è presente un bagno di servizio.

Tramite scale in muratura, si raggiunge la zona notte, nelle quali si può godere di una splendida vista sulle colline del Castello di Ribano ed è caratterizzata da tre camere da letto matrimoniali, una delle quali dotata di ripostiglio privato.

Conclude il piano terra una cantina e vari servizi di oltre 130 mq, tra cui un deposito trasformabile come ulteriore garage e diversi posti auto.

La soluzione può essere divisibile in due unità abitative.

Il giardino circostante offre un'oasi di tranquillità, rendendo questa dimora un'opportunità unica per chi cerca una residenza accogliente e funzionale.

Per qualsiasi informazione o per fissare un appuntamento chiama: 3938307255 o 0541942614 oppure manda un'email: fohr4

Mostra tutto

Nelle vicinanze

Trasporto pubblico Trasporto pubblico
Borsellino
Borsellino
1,9 Km
Trasporto pubblico
1,9 Km
Savignano
Savignano
2,8 Km
Scuole Scuole
Scuole
1,8 Km
Istituto Tecnico Industriale
1,9 Km
Dante Alighieri
2,5 Km
Ospedali Ospedali
Ospedali
2,6 Km
Supermercati Supermercati
Conad
2,4 Km
Lidl
2,9 Km
Negozi Negozi
SGT corriere
3,0 Km
Bar Bar
Sidro Club
1,6 Km
Bar Sport
2,3 Km
Ristoranti Ristoranti
Il Contadino
420 m
Ristoranti
1,3 Km
Mapaleo
1,9 Km
Il Grottino
2,2 Km
Pizzeria Il Borgo
2,2 Km
Mostra tutto

Caratteristiche

Rif.:
61153971
Piano:
Su più livelli di 2
Totale piani:
2
Box:
1
Posti auto:
5
Camere da letto:
3
Mostra tutto
Prezzo Prezzo
€ 270.000
Rata mutuo Rata mutuo
€ 1.283 / mese
Spese annue Spese annue
€ 0
Proponi il tuo prezzoProponi il tuo prezzo
Immobile valutato con T·Valuta

Classe Energetica

Questo immobile è esente da classe energetica
Anno di costruzione:
1900
Riscaldamento:
Autonomo
Tipo impianto:
A radiatori
Tipo alimentazione:
Metano

Prezzo ridotto di €1 (7%%)

Ti interessa visionare l'immobile?

Fissa un appuntamento  Fissa un appuntamento

Richiedi informazioni

Clicca su Leggi per aprire l'informativa
* Questi campi sono obbligatori

Calcola il tuo mutuo

Semplice e senza impegno
Anticipo

( % )
Mutuo

( % )

pochi semplici passi

inserisci i tuoi dati
Questionario completato
Grazie per aver richiesto un appuntamento senza impegno con un nostro Consulente del Credito e Assicurativo.

Hai inserito correttamente tutti i dati necessari e a breve riceverai una e-mail con un link da convalidare per inviare i tuoi dati.
Affiliato
Studio Savignano Srl
Corso Perticari, 37 47039 Savignano Sul Rubicone (FC)

Il nostro staff


  • Daniele Pellegrino
    Affiliato

  • Naomi Carabini
    Coordinatrice

  • Alessandro Casadei
    Affiliato

  • Rebecca David
    Collaboratrice

  • Maringlen Murrja
    Collaboratore
Corso Perticari, 37 47039 Savignano Sul Rubicone (FC)
Zona: Savignano sul Rubicone
Mostra su mappa
Orari: Lun. - Ven 09.00/13.00 15.00/19.30 Sab. 09.00/13.00
Affiliato
Studio Savignano Srl
Corso Perticari, 37 47039 Savignano Sul Rubicone (FC)

2026 Tecnocasa Franchising S.p.A. - P. IVA 08365160152 - Via Monte Bianco 60/A 20089 Rozzano (MI). Ogni agenzia ha un proprio titolare ed è autonoma. Privacy policy | Policy utilizzo | Cookie policy