Quadrilocale in vendita

Savignano Sul Rubicone, Via Silvio Pellico
€ 118.000
Prezzo aggiornato
4 locali 4 locali
146 Mq 146 Mq
1 bagno 1 bagno

Quadrilocale in vendita

Savignano Sul Rubicone, Via Silvio Pellico

Descrizione annuncio

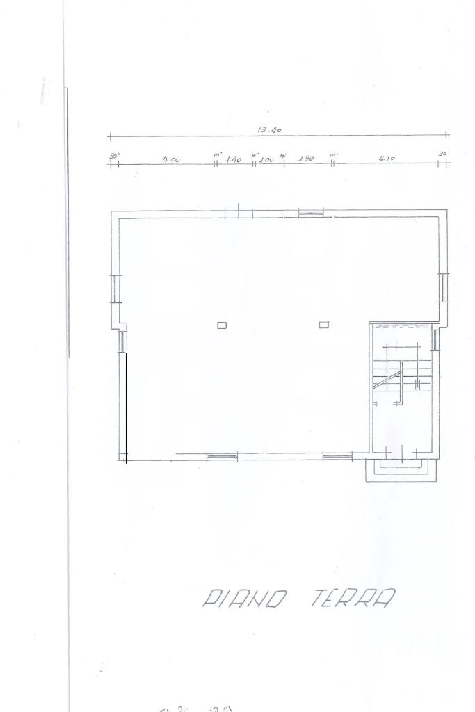
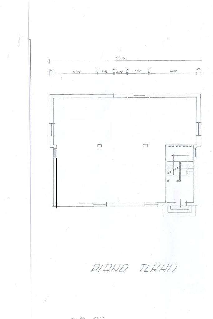
SAVIGNANO SUL RUBICONE: Zona Cesare, appartamento allo stato grezzo sviluppato su un unico livello al piano terra, con ingresso indipendente, servito da corte e garage o posto auto.

Da ingresso indipendente al piano terra accediamo all'appartamento di circa 90 mq, che al momento si presenta allo stato grezzo. La soluzione offre ampi spazi da personalizzare, permettendo di adattare ogni ambiente alle proprie esigenze.

La metratura permette la realizzazione di un soggiorno con angolo cottura, tre camere da letto ed un bagno. All'esterno, una corte privata offre uno spazio per attività all'aperto.

La proprietà include la possibilità di avere un garage o un posto auto.

Rappresenta un'opportunità unica per chi desidera creare una residenza su misura e senza spese condominiali, in una zona tranquilla e ben servita.

Per qualsiasi informazione o per fissare un appuntamento chiama: 3938307255 o 0541942614 oppure manda un'email: fohr4

Mostra tutto

Nelle vicinanze

Trasporto pubblico Trasporto pubblico
Borsellino
Borsellino
590 m
Trasporto pubblico
620 m
Savignano
Savignano
1,7 Km
Scuole Scuole
Scuole
580 m
Istituto Tecnico Industriale
680 m
Dante Alighieri
1,4 Km
Scuola Primaria "De Amicis"
2,4 Km
Istituto Don Luigi Ghinelli
2,7 Km
Farmacia Farmacia
Farmacia San Rocco
2,4 Km
Salute e Benessere insieme
2,4 Km
Ospedali Ospedali
Ospedali
1,6 Km
Supermercati Supermercati
Conad
1,3 Km
Lidl
2,2 Km
Supermercati
2,2 Km
Negozi Negozi
SGT corriere
2,3 Km
Negozi
2,4 Km
Bar Bar
Sidro Club
620 m
Bar Sport
1,1 Km
Bar
2,1 Km
Ristoranti Ristoranti
Ristoranti
310 m
Mapaleo
680 m
Pizzeria Il Borgo
940 m
Il Grottino
1,0 Km
Il Contadino
1,2 Km
Mostra tutto

Caratteristiche

Rif.:
61162306
Piano:
Terra di 4
Totale piani:
4
Box:
1
Posti auto:
3
Camere da letto:
3
Mostra tutto
Prezzo Prezzo
€ 118.000
Rata mutuo Rata mutuo
€ 561 / mese
Spese annue Spese annue
€ 0
Proponi il tuo prezzoProponi il tuo prezzo

Classe Energetica

Questo immobile è esente da classe energetica
Anno di costruzione:
1977
Riscaldamento:
Assente

Prezzo ridotto di €1 (15%%)

Ti interessa visionare l'immobile?

Fissa un appuntamento  Fissa un appuntamento

Richiedi informazioni

Clicca su Leggi per aprire l'informativa
* Questi campi sono obbligatori

Calcola il tuo mutuo

Semplice e senza impegno
Anticipo

( % )
Mutuo

( % )

pochi semplici passi

inserisci i tuoi dati
Questionario completato
Grazie per aver richiesto un appuntamento senza impegno con un nostro Consulente del Credito e Assicurativo.

Hai inserito correttamente tutti i dati necessari e a breve riceverai una e-mail con un link da convalidare per inviare i tuoi dati.
Affiliato
Studio Savignano Srl
Corso Perticari, 37 47039 Savignano Sul Rubicone (FC)

Il nostro staff


  • Daniele Pellegrino
    Affiliato

  • Naomi Carabini
    Coordinatrice

  • Alessandro Casadei
    Affiliato

  • Rebecca David
    Collaboratrice

  • Maringlen Murrja
    Collaboratore
Corso Perticari, 37 47039 Savignano Sul Rubicone (FC)
Zona: Savignano sul Rubicone
Mostra su mappa
Orari: Lun. - Ven 09.00/13.00 15.00/19.30 Sab. 09.00/13.00
Affiliato
Studio Savignano Srl
Corso Perticari, 37 47039 Savignano Sul Rubicone (FC)

2026 Tecnocasa Franchising S.p.A. - P. IVA 08365160152 - Via Monte Bianco 60/A 20089 Rozzano (MI). Ogni agenzia ha un proprio titolare ed è autonoma. Privacy policy | Policy utilizzo | Cookie policy